Monolocale in affitto

Torino, Corso Belgio - Vanchiglietta Zona Mercato
€ 400 / mese
1 locale 1 locale
18 Mq 18 Mq
1 bagno 1 bagno

Monolocale in affitto

Torino, Corso Belgio - Vanchiglietta Zona Mercato

Descrizione annuncio

CORSO BELGIO 87 – AFFITTASI SOLO STUDENTI

Dal 1° aprile 2026 si affitta 1 ampia camera matrimoniale ad uso singolo in appartamento in condivisione al 4° ed ultimo piano con ascensore.

L’alloggio gode di una splendida vista sulla Mole Antonelliana, è completamente arredato e composto da: cucina abitabile e bagno in condivisione.

L'appartamento si trova in zona Vanchiglietta, posizione strategica a pochi minuti dal Campus Einaudi e da Palazzo Nuovo.

Caratteristiche principali
- 1 camera matrimoniale arredata
- Spazi comuni: cucina e bagno
- Riscaldamento centralizzato
- Canone: € 400/mese
- Spese condominiali: € 35/mese
- Disponibile dal 1° aprile 2026
- Riservato a studenti

Mostra tutto

Nelle vicinanze

Trasporto pubblico Trasporto pubblico
Porta Nuova
Porta Nuova
2,9 Km
Chieti
Chieti
20 m
Andorno
Andorno
210 m
Chieti
Chieti
30 m
Andorno
Andorno
210 m
Ricariche auto elettriche Ricariche auto elettriche
Bluetorino Corso Cadore
870 m
LIDL Torino Via Bologna
1,6 Km
evway TO Plana
1,8 Km
NH Collection Torino Piazza Carlina
2,0 Km
evway TO Castello
2,1 Km
Scuole Scuole
Scuola Internazionale europea statale Altiero Spinelli
520 m
Scuole
560 m
Primo Liceo Artistico
580 m
Laboratorio Musicale Il Trillo
590 m
Scuola Primaria "Ludovico Antonio Muratori"
630 m
Farmacia Farmacia
Comunale 4 - Afc
310 m
Squillario
420 m
Marinello
440 m
Madonna
570 m
Farmacia Subalpina
730 m
Ospedali Ospedali
Presidio Sanitario Gradenigo
650 m
Azienda Asl TO2 Circoscrizione 7
860 m
Presidio Ospedaliero Major
1,1 Km
Ospedale Maria Adelaide
1,6 Km
San Camillo
1,9 Km
Supermercati Supermercati
Carrefour Express
40 m
Ekom
380 m
Crai
470 m
Supermercati
540 m
Coop
770 m
Negozi Negozi
Dalla Terra al Cielo
460 m
Pastificio Renato
810 m
Il Fornaio
870 m
Negozio Leggero
950 m
El pan d'na Volta
1,1 Km
Bar Bar
Angeli del Caffé
440 m
Discoteca Maxxxim
550 m
Caffè della Caduta
940 m
Bar Tu
1,2 Km
Locanda Johar
1,2 Km
Ristoranti Ristoranti
Pizzeria A' Livella
90 m
Angeli del Caffé
430 m
L'Oasis
460 m
Ristoranti
570 m
Casale 93
590 m
Mostra tutto

Caratteristiche

Rif.:
61157751
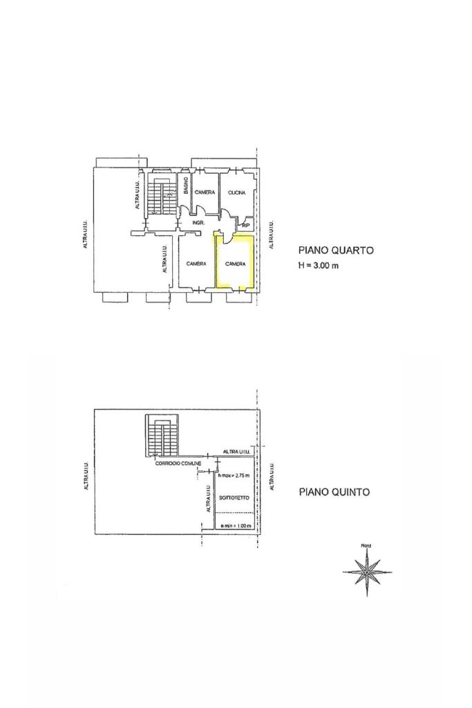
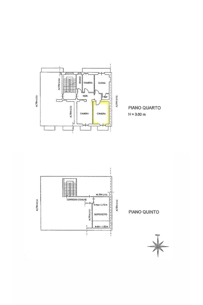
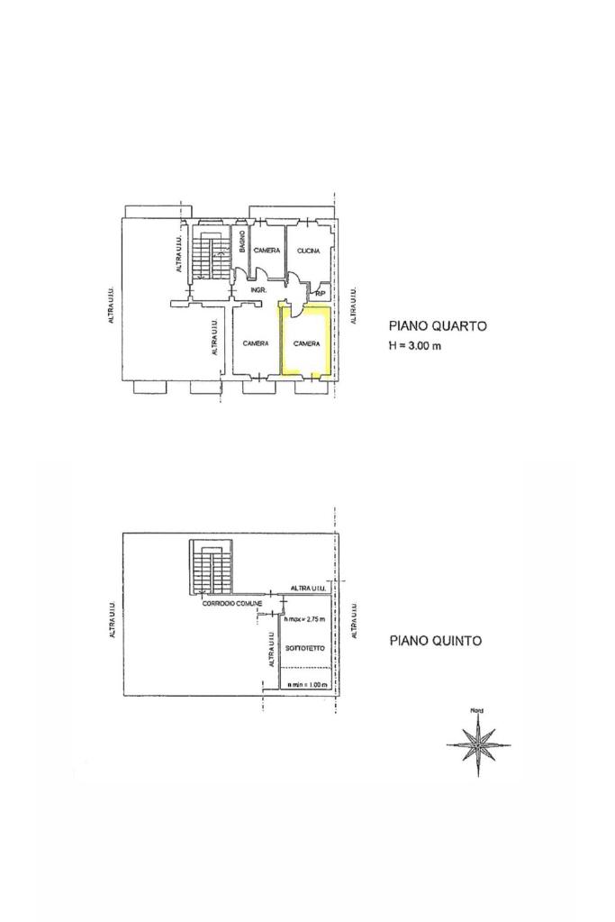
Piano:
4 di 4 con ascensore (ultimo Piano)
Balconi:
2
Camere da letto:
3
Arredamento:
Completo
Condizionamento:
Assente
Mostra tutto
Prezzo Prezzo
€ 400 / mese
Spese annue Spese annue
€ 420

Classe Energetica

E
E
E
E
E
E
E
E
E
EP globale non rinnovabile:
251.35 kW h/m² anno
EP globale rinnovabile:
251.35 kW h/m² anno
EP invernale del fabbricato:
EP estiva del fabbricato:
Anno di costruzione:
1900
Riscaldamento:
Centralizzato
Tipo impianto:
A radiatori
Tipo alimentazione:
Metano

Ti interessa visionare l'immobile?

Fissa un appuntamento  Fissa un appuntamento

Richiedi informazioni

Clicca su Leggi per aprire l'informativa
* Questi campi sono obbligatori
Affiliato
Immobiliare Nuova Vanchiglietta Sas
Corso Belgio, 34 10153 Torino (TO)

Il nostro staff


  • Franco Quercia
    Affiliato

  • Alessandro Rocchetta
    Collaboratore

  • Ilenia Romanazzi
    Coordinatrice

  • Marika Silipigni
    Collaboratrice
Corso Belgio, 34 10153 Torino (TO)
Zona: Vanchiglietta-Corso Belgio-Zona Mercato
Mostra su mappa
Orari: da Lunedì a Venerdì dalle ore 9:00 alle 20:00. Sabato chiusura alle 17:00
Affiliato
Immobiliare Nuova Vanchiglietta Sas
Corso Belgio, 34 10153 Torino (TO)

2026 Tecnocasa Franchising S.p.A. - P. IVA 08365160152 - Via Monte Bianco 60/A 20089 Rozzano (MI). Ogni agenzia ha un proprio titolare ed è autonoma. Privacy policy | Policy utilizzo | Cookie policy