Bilocale in vendita

Torino, Via Eusebio Bava - Vanchiglia
€ 165.000
2 locali 2 locali
50 Mq 50 Mq
1 bagno 1 bagno

Bilocale in vendita

Torino, Via Eusebio Bava - Vanchiglia

Descrizione annuncio

VANCHIGLIA – VIA BAVA 23/A – NUOVA REALIZZAZIONE

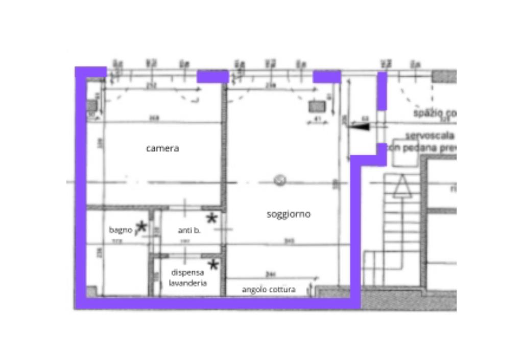
Nel cuore di Vanchiglia, a due passi dal centro di Torino e in posizione strategica per i principali poli universitari, quali Palazzo Nuovo ed il Campus Einaudi, proponiamo in vendita bilocale di 50 mq di nuova realizzazione.

L’immobile fa parte di un nuovo complesso residenziale composto da 11 unità abitative, tutte di nuova realizzazione e disponibili in diverse metrature. Soluzione ideale sia come prima casa sia come investimento.

Gli appartamenti saranno realizzati secondo capitolato con finiture moderne e materiali di qualità, con possibilità di personalizzazione.

Le immagini presenti sono render a scopo illustrativo e non rappresentano lo stato attuale dell’immobile.

Per info o per fissare una visita contattaci al 392.5785151.

Mostra tutto

Nelle vicinanze

Trasporto pubblico Trasporto pubblico
Porta Nuova
Porta Nuova
1,8 Km
Re Umberto
Re Umberto
2,1 Km
stazione di Torino Porta Nuova
stazione di Torino Porta Nuova
1,9 Km
stazione di Torino Porta Susa
stazione di Torino Porta Susa
2,7 Km
Santa Giulia
Santa Giulia
100 m
Ricariche auto elettriche Ricariche auto elettriche
evway TO Plana
610 m
NH Collection Torino Piazza Carlina
880 m
evway TO Castello
1,1 Km
Bluetorino Porta Palatina
1,4 Km
evway TO Porta Palatina
1,4 Km
Scuole Scuole
Scuola Primaria "L. Fontana"
300 m
Liceo Classico Statale Gioberti
310 m
Liceo Scientifico Gobetti Segrè
340 m
Università degli Studi di Torino
420 m
Istituto Madre Cabrini
530 m
Farmacia Farmacia
Farmacia Nazionale
130 m
Porinelli
240 m
Santa Giulia
320 m
Farmacia
320 m
Farmacia Borgo Po "Aicardi"
450 m
Ospedali Ospedali
Presidio Ospedaliero Major
100 m
Azienda Asl TO2 Circoscrizione 7
310 m
Presidio Sanitario Gradenigo
450 m
Ospedale Maria Adelaide
970 m
Presidio San Giovanni Antica Sede
1,1 Km
Supermercati Supermercati
Supermercati
110 m
Ossola SAS
420 m
Conad
490 m
MD
550 m
Pam local
580 m
Negozi Negozi
Maclon
80 m
Lizia
130 m
Negozio Leggero
220 m
El pan d'na Volta
240 m
Negozi
270 m
Bar Bar
All'improvviso
230 m
Caffè della Caduta
250 m
Locanda Johar
280 m
Alla goccia!
310 m
The Beach
330 m
Ristoranti Ristoranti
Pizzeria Vesuvio
90 m
Casa Grosso
190 m
La locanda leggera
230 m
Habanero
250 m
Trattoria Piemontese
290 m
Mostra tutto

Caratteristiche

Rif.:
61170785
Piano:
1 di 2 (Piano basso)
Camere da letto:
1
Arredamento:
Parziale
Condizionamento:
Assente
Ascensore:
No
Mostra tutto
Prezzo Prezzo
€ 165.000
Rata mutuo Rata mutuo
€ 784 / mese
Spese annue Spese annue
€ 0
Proponi il tuo prezzoProponi il tuo prezzo

Classe Energetica

B
B
B
B
B
B
B
B
B
Anno di costruzione:
2000
Riscaldamento:
Centralizzato
Tipo impianto:
Ad aria
Tipo alimentazione:
Aria

Ti interessa visionare l'immobile?

Fissa un appuntamento  Fissa un appuntamento

Richiedi informazioni

Clicca su Leggi per aprire l'informativa
* Questi campi sono obbligatori

Calcola il tuo mutuo

Semplice e senza impegno
Anticipo

( % )
Mutuo

( % )

pochi semplici passi

inserisci i tuoi dati
Questionario completato
Grazie per aver richiesto un appuntamento senza impegno con un nostro Consulente del Credito e Assicurativo.

Hai inserito correttamente tutti i dati necessari e a breve riceverai una e-mail con un link da convalidare per inviare i tuoi dati.
Affiliato
Immobiliare Nuova Vanchiglietta Sas
Corso Belgio, 34 10153 Torino (TO)

Il nostro staff


  • Franco Quercia
    Affiliato

  • Alessandro Rocchetta
    Collaboratore

  • Ilenia Romanazzi
    Coordinatrice

  • Marika Silipigni
    Collaboratrice
Corso Belgio, 34 10153 Torino (TO)
Zona: Vanchiglietta-Corso Belgio-Zona Mercato
Mostra su mappa
Orari: da Lunedì a Venerdì dalle ore 9:00 alle 20:00. Sabato chiusura alle 17:00
Affiliato
Immobiliare Nuova Vanchiglietta Sas
Corso Belgio, 34 10153 Torino (TO)

2026 Tecnocasa Franchising S.p.A. - P. IVA 08365160152 - Via Monte Bianco 60/A 20089 Rozzano (MI). Ogni agenzia ha un proprio titolare ed è autonoma. Privacy policy | Policy utilizzo | Cookie policy