Monolocale in vendita

Torino, Via Eusebio Bava - Vanchiglia
€ 135.000
Prezzo aggiornato
1 locale 1 locale
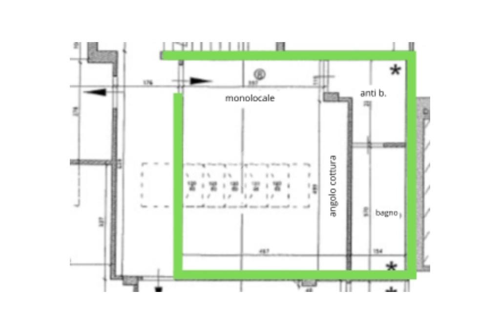
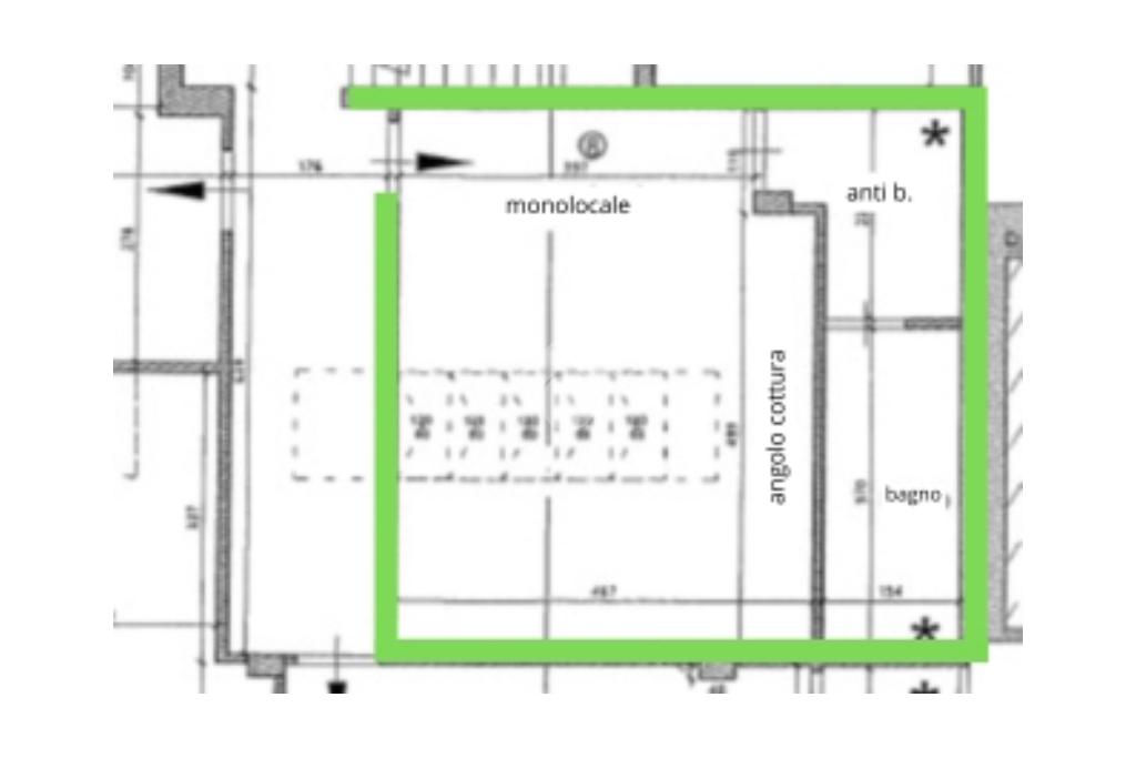
42 Mq 42 Mq
1 bagno 1 bagno

Monolocale in vendita

Torino, Via Eusebio Bava - Vanchiglia

Descrizione annuncio

VANCHIGLIA – VIA BAVA 23/A – NUOVA REALIZZAZIONE

Nel cuore di Vanchiglia, a due passi dal centro di Torino e in posizione strategica per i principali poli universitari, quali Palazzo Nuovo ed il Campus Einaudi, proponiamo in vendita monolocale di 42 mq di nuova realizzazione.

L’immobile fa parte di un nuovo complesso residenziale composto da 11 unità abitative, tutte di nuova realizzazione e disponibili in diverse metrature. Soluzione ideale sia come prima casa sia come investimento.

Gli appartamenti saranno realizzati secondo capitolato con finiture moderne e materiali di qualità, con possibilità di personalizzazione.

Le immagini presenti sono render a scopo illustrativo e non rappresentano lo stato attuale dell’immobile.

Per info o per fissare una visita contattaci al 392.5785151.

Mostra tutto

Nelle vicinanze

Trasporto pubblico Trasporto pubblico
Porta Nuova
Porta Nuova
1,8 Km
Re Umberto
Re Umberto
2,1 Km
stazione di Torino Porta Nuova
stazione di Torino Porta Nuova
1,9 Km
Santa Giulia
Santa Giulia
140 m
San Maurizio
San Maurizio
210 m
Ricariche auto elettriche Ricariche auto elettriche
evway TO Plana
610 m
NH Collection Torino Piazza Carlina
880 m
evway TO Castello
1,1 Km
Bluetorino Porta Palatina
1,4 Km
evway TO Porta Palatina
1,4 Km
Scuole Scuole
Liceo Classico Statale Gioberti
310 m
Istituto Madre Cabrini
530 m
Scuole
540 m
Università degli Studi di Torino
610 m
Residenza Universitaria EDISU Stemmi
670 m
Farmacia Farmacia
Farmacia Nazionale
130 m
Farmacia
320 m
Gran Madre
560 m
Farmacia Collegiata Berta
590 m
Degli Stemmi
740 m
Ospedali Ospedali
Presidio Ospedaliero Major
100 m
Azienda Asl TO2 Circoscrizione 7
310 m
Presidio Sanitario Gradenigo
530 m
Presidio San Giovanni Antica Sede
1,1 Km
San Camillo
1,3 Km
Supermercati Supermercati
Supermercati
160 m
Ossola SAS
420 m
Conad
490 m
Pam local
580 m
Carrefour Express
740 m
Negozi Negozi
El pan d'na Volta
240 m
Pastificio Renato
360 m
3Tolo
400 m
Berruto 1801
470 m
Kilos
520 m
Bar Bar
All'improvviso
230 m
Locanda Johar
280 m
Lobelix 2
450 m
Lab
450 m
Soho.23
460 m
Ristoranti Ristoranti
Pizzeria Vesuvio
90 m
Casa Grosso
190 m
Habanero
250 m
Trattoria Piemontese
290 m
Lo scugnizzo
330 m
Mostra tutto

Caratteristiche

Rif.:
61170793
Piano:
1 di 2 (Piano basso)
Arredamento:
Assente
Condizionamento:
Assente
Ascensore:
No
Riscaldamento:
Centralizzato
Mostra tutto
Prezzo Prezzo
€ 135.000
Rata mutuo Rata mutuo
€ 640 / mese
Spese annue Spese annue
€ 0
Proponi il tuo prezzoProponi il tuo prezzo

Classe Energetica

B
B
B
B
B
B
B
B
B
Anno di costruzione:
2000
Riscaldamento:
Centralizzato
Tipo impianto:
Ad aria
Tipo alimentazione:
Aria

Prezzo ridotto di €1 (10%%)

Ti interessa visionare l'immobile?

Fissa un appuntamento  Fissa un appuntamento

Richiedi informazioni

Clicca su Leggi per aprire l'informativa
* Questi campi sono obbligatori

Calcola il tuo mutuo

Semplice e senza impegno
Anticipo

( % )
Mutuo

( % )

pochi semplici passi

inserisci i tuoi dati
Questionario completato
Grazie per aver richiesto un appuntamento senza impegno con un nostro Consulente del Credito e Assicurativo.

Hai inserito correttamente tutti i dati necessari e a breve riceverai una e-mail con un link da convalidare per inviare i tuoi dati.
Affiliato
Immobiliare Nuova Vanchiglietta Sas
Corso Belgio, 34 10153 Torino (TO)

Il nostro staff


  • Franco Quercia
    Affiliato

  • Alessandro Rocchetta
    Collaboratore

  • Ilenia Romanazzi
    Coordinatrice

  • Marika Silipigni
    Collaboratrice
Corso Belgio, 34 10153 Torino (TO)
Zona: Vanchiglietta-Corso Belgio-Zona Mercato
Mostra su mappa
Orari: da Lunedì a Venerdì dalle ore 9:00 alle 20:00. Sabato chiusura alle 17:00
Affiliato
Immobiliare Nuova Vanchiglietta Sas
Corso Belgio, 34 10153 Torino (TO)

2026 Tecnocasa Franchising S.p.A. - P. IVA 08365160152 - Via Monte Bianco 60/A 20089 Rozzano (MI). Ogni agenzia ha un proprio titolare ed è autonoma. Privacy policy | Policy utilizzo | Cookie policy